friwa®-wash PSM-Adsorber
Auf landwirtschaftlichen Nutzflächen werden Pflanzenschutzmittel (PSM) eingesetzt. Spritzen und Behälter mit PSM müssen regelmässig gereinigt werden.
Bisher gelangt das Waschwasser direkt oder mit Gülle auf die Felder oder wird mit Biofilter behandelt. Gegen den punktuellen Eintrag durch Waschwasserreste aus der Reinigung von Spritzgeräten und Behältern wurde eine neue technische Lösung mit granulierter Aktivkohle entwickelt.
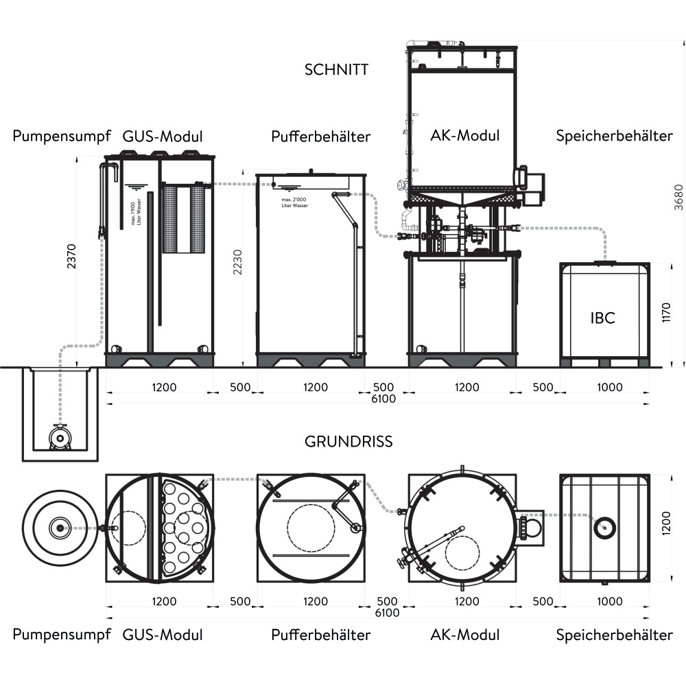
Unser Pestizidabscheider dient zum Rückhalt von ungelösten Stoffen mithilfe von Sedimentation / Filtration und Pflanzenschutzmitteln (PSM) mittels Adsorption an granulierter Aktivkohle (GAK) in Säulen. Das behandelte Wasser kann auf Feld und Wiese ausgebracht oder wiederverwendet werden, sodass der diffuse Direkteintrag in die Umwelt stets unterbunden ist.
- |
| Sortierung | Art.-Nr. | Produktinformationen | LF | Spez. | Typ | GR | HW | L (mm) | B (mm) | H (mm) | G tot. (kg/Stk.) | Per | Preis | |||
|---|---|---|---|---|---|---|---|---|---|---|---|---|---|---|---|---|
| 4607 | 126425 |
friwa-wash PSM-Adsorber Small PSM A20 |
stock-3 | Filter 20 m3 | Small PSM A20 | GR CI | HW 99 | L (mm) 6100 | B (mm) 1200 | H (mm) 2540 | G tot. (kg/Stk.) 1300 | Stk. | auf Anfrage |
|
|
|
| 4608 | 139631 |
friwa-wash PSM-Adsorber Big PSM A50 |
stock-3 | Filter 50 m3 | Big PSM A50 | GR CI | HW 99 | L (mm) 6100 | B (mm) 1200 | H (mm) 3680 | G tot. (kg/Stk.) 1950 | Stk. | auf Anfrage |
|
|